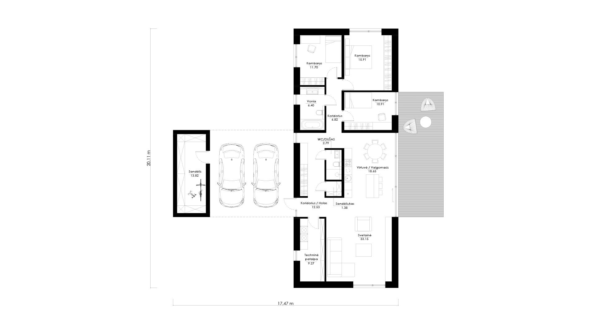
Projektas SUB: E01
Namo projektas SUB E01. Nuotrauka nr. 162Namo projektas SUB E01. Nuotrauka nr. 166Namo projektas SUB E01. Nuotrauka nr. 163Namo projektas SUB E01. Nuotrauka nr. 165Namo projektas SUB E01. Nuotrauka nr. 164Namo projektas SUB E01. Nuotrauka nr. 779